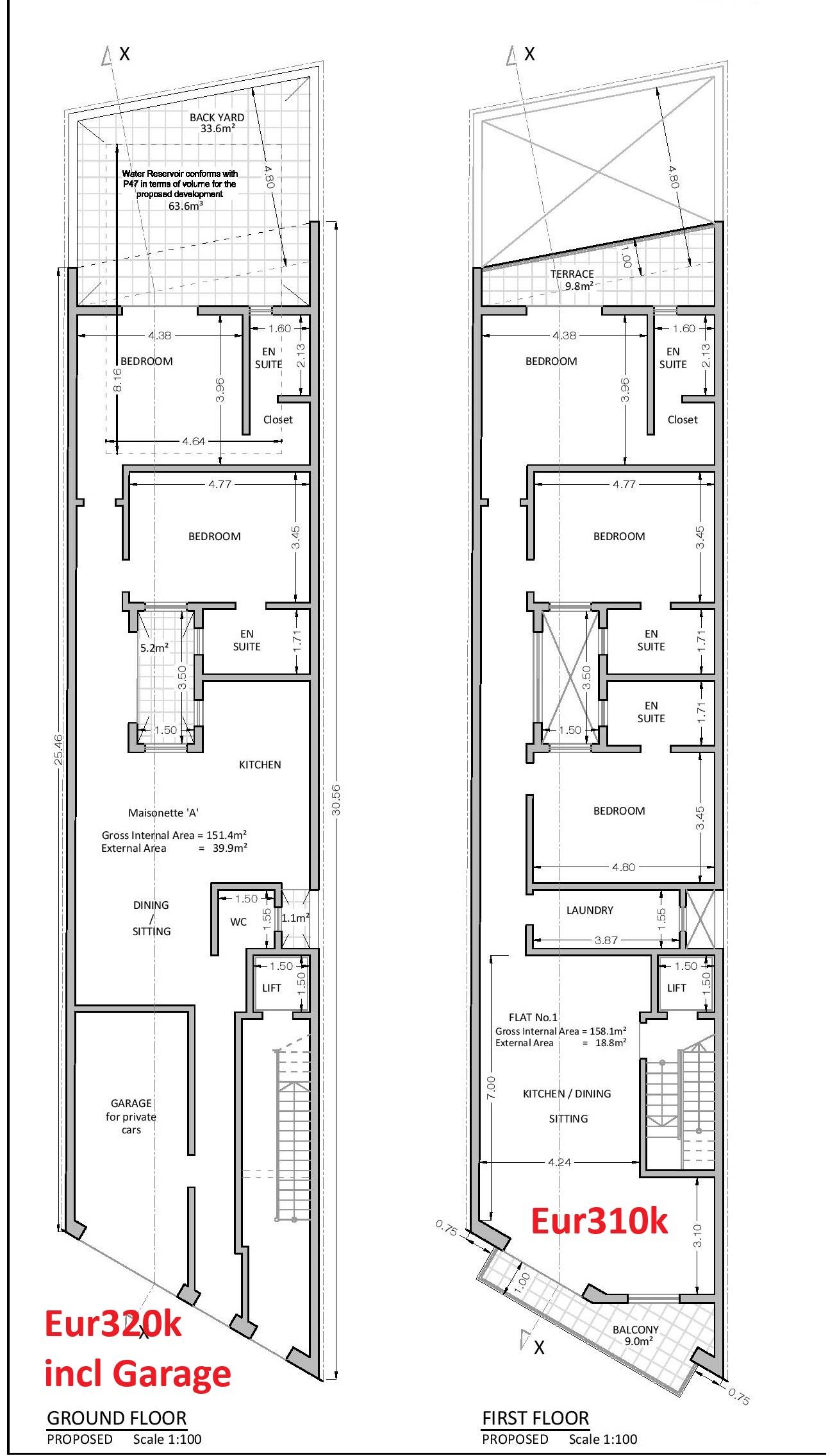
Ref 3675

Shell Apartment

€310,000

  • Zebbug
  • Shell
  • 3 Bedrooms
  • 177
Contact us

Features

  • Terrace
New on the market (Dec 2025). On plan, to be sold in shell are three very spacious (177m2) apartments and a 190m2 maisonnette including a street level garage, located in very peaceful sought after area of this tiny village. Pre-construction prices for the apartments at eur310,000; The maisonette plus + garage asking eur320,000. Lift and common parts included. Contact us for more info.