Ref 3661

Unconverted Land

€825,000

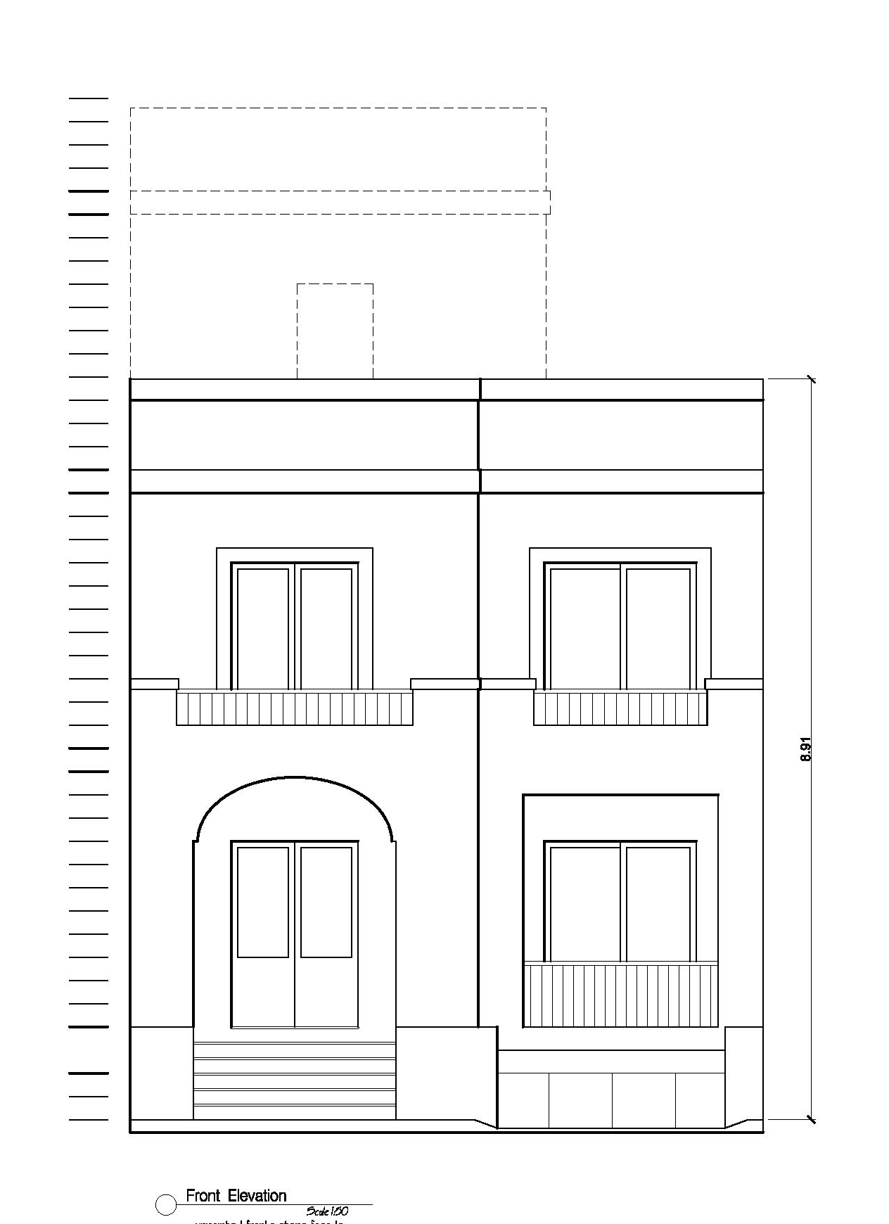
  • Xaghra
  • Unconverted
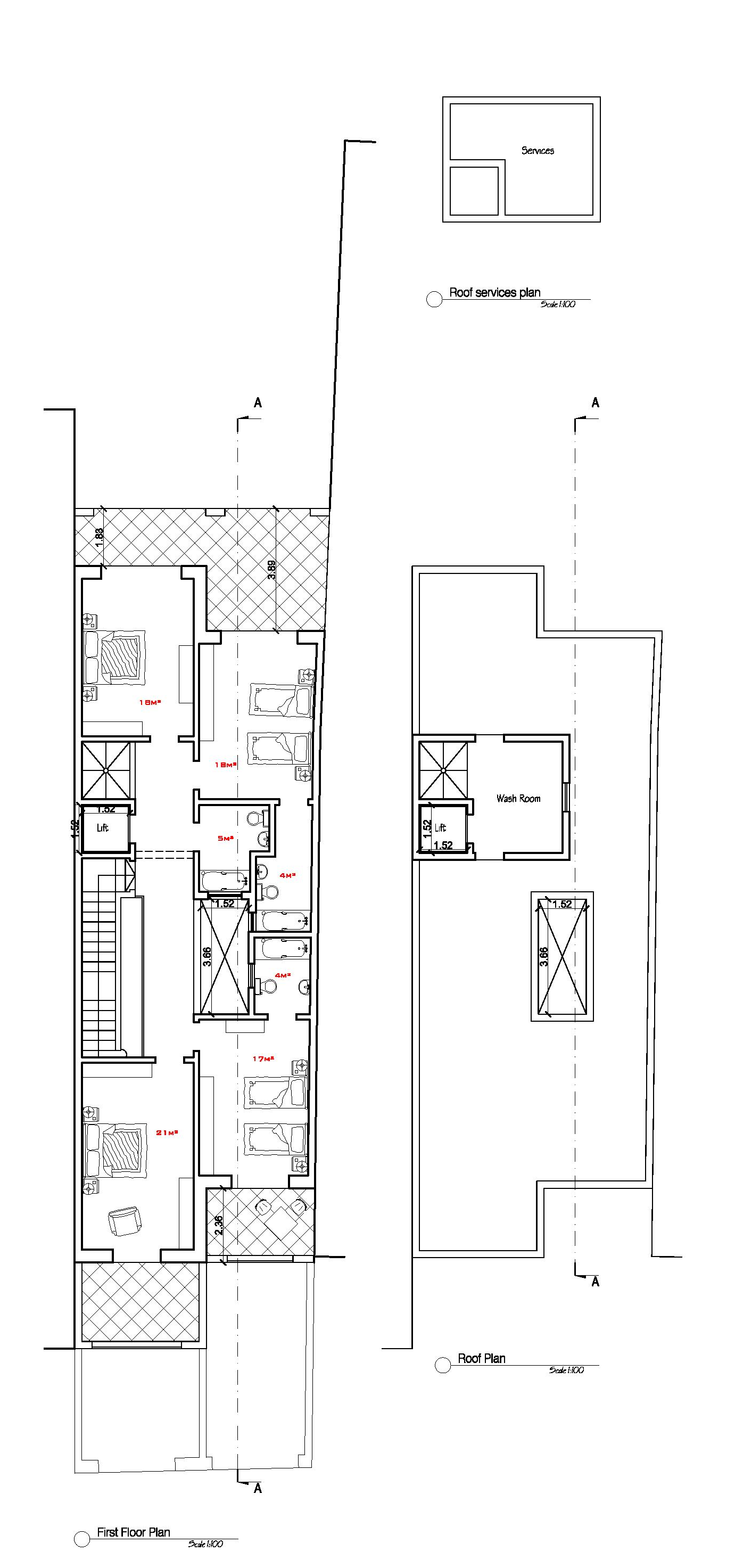
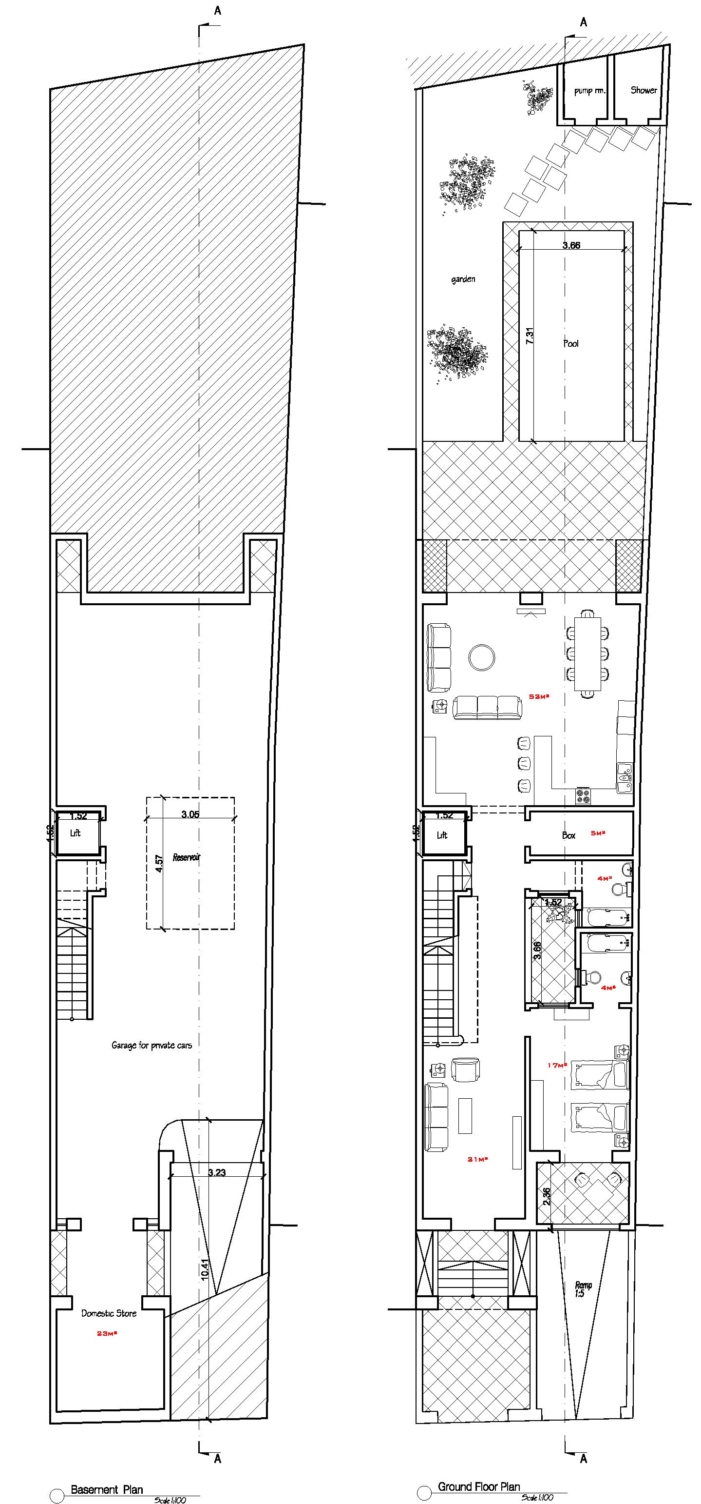
  • 1 Bedroom
  • 394
Contact us

Features

  • Country Views
  • Sea Views
One off location. A truly rare plot of land, located in a hamlet of few other houses, in a much sought after secluded area enjoying open views from front and back. Set on 394m2 (23ft by 150ft) Permits approved for an impressive 5bedroom House, large swimming pool and an underlying garage. Do not miss.