Ref 3648

Shell House

€520,000

  • Sannat
  • Shell
  • 4 Bedrooms
Contact us

Features

  • Country Views
  • Swimming Pool
  • Terrace
  • Garage
  • Garage
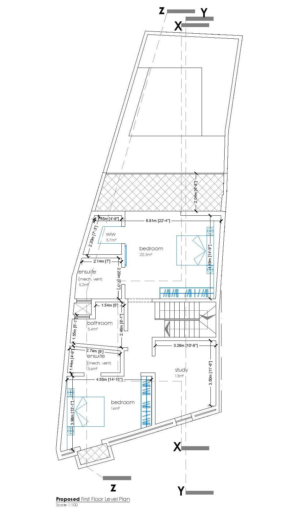
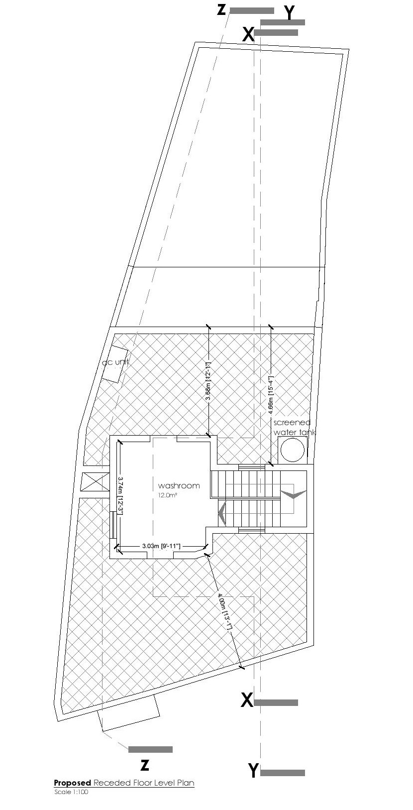
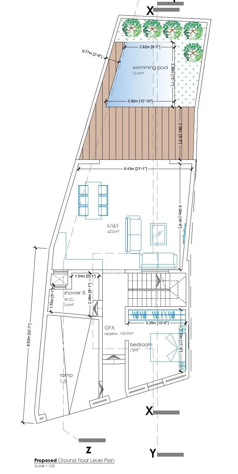
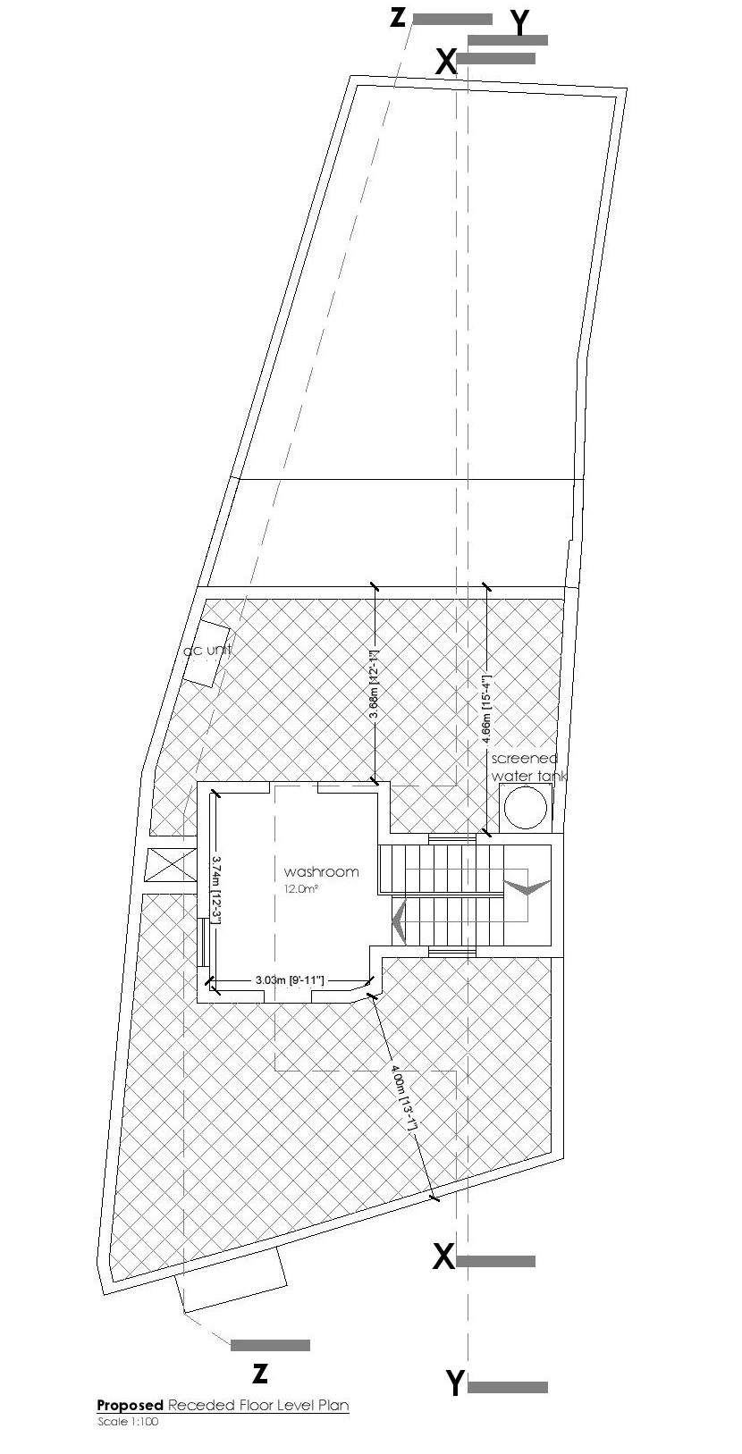
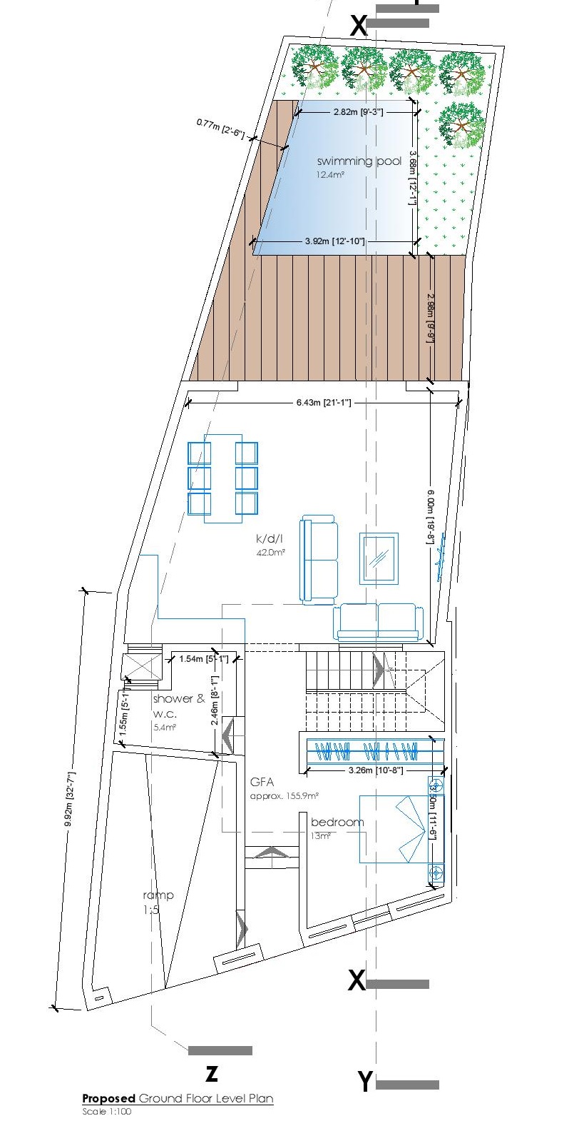
Best value! A perfectly laid out, 9m fronted Terraced House, located within uca (no tax), few minutes walk to the spectacular Ta Cenc cliffs and the surrounding countryside. To be build and sold in shell by end of 2026, this property will offer an entrance hall, combined lounge/dining/kitchen leading to a swimming pool and deck bbq area. Wide stairs lead to 3 double bedrooms (2 en-suite and a bathroom). Another double bedroom (4th) and a guest bathroom are found on ground-floor. A washroom on 2nd floor, with front and back terraces overlooking far reaching views completes this ideal family home. Complimenting this property will be an underlying 5/6 car garage. Highly recommended.